Web App 2024 ~ 2022

- Layout Block -

Page07_Layout

Problem:

Similar to the Annotation Tool, Revit's built-in Sheet Tool is limited, as it:
Allows placement of only generate a single view or put onto a sheet per operation .
Lacks a streamlined process for creating and organizing multiple views and layouts efficiently, which is time-intensive for projects requiring extensive documentation.


Solution:

A custom automated layout management tool resolves these issues by:

Batch View Creation: Automatically generating various types of views, including plans, elevations, and sections, based on project data.

Initial Sheet Layout: Automatically arranging the newly created views onto sheets with a preliminary layout.

Customizable Adjustments: Allowing users to fine-tune the layout to meet specific requirements.

This solution significantly reduces manual input, enhances productivity, and provides a solid starting point for efficient documentation in Revit.



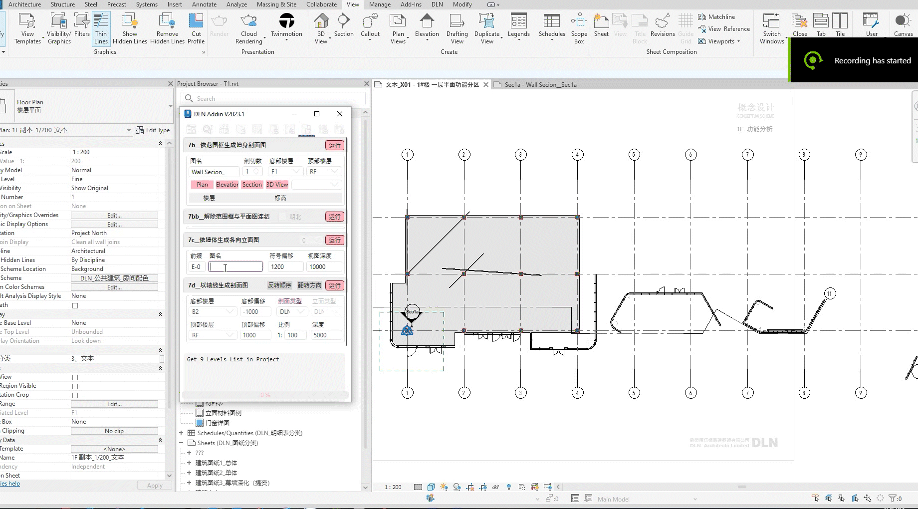
7b__Create Wall Section By Scope Box :

  1. Place a scope box on the plan view. Ensure the rotation marker of the scope box is oriented outward.
  2. Adjust the settings of "sheet name", "number of the sections to create", "base level" and "top level".
  3. Press the "Run" button, a level list will be generated based on the selected base level and top level.
  4. Choose the levels in the list for generating plan views.
  5. Press the "Run" button again to start the generation process.

--


7bb__Unbind ViewPlan From Scope Box :

  1. Press the "Run" button, then select the bound (locked) viewports.
  2. Press the "Finish" the button to confirm.
  3. The tool will automatically unbind the selected plan views from the scope box, allowing manual rotation of the view.

--


7c__Create Elevations By Walls :

  1. Adjust the settings of "sheet number", "sheet name", "symbol offest" and "view depth" in millimeters (mm).
  2. Press the "Run" button, then select the desired walls in the current plan view. Press the "Finish" to confirm.
  3. The tool will automatically generate partial elevation views and a simplified key legend.

--


7d__Create Section By Grid :

  1. Draw a multi-segment gridline as a reference polyline.
  2. Adjust the settings for scale, offest and view depth in millimeters (mm).
  3. Choose the desired base level and top level from the dropdown list.
  4. Choose the desired section marker type from the dropdown list.
  5. Press the "Run" button, then select the previously drawn gridline to start the generation process.
  6. The tool will automatically generate partial sections, use the adjust buttons to modify the order or orientation if needed.

--


7e__Create Room Plan By Flat Type :

  1. Enter the sheet number and sheet name for the new plan.
  2. Press the "Run" button, then select the base levels from the generated list to create the new plan.
  3. Press the "Run" button again to start the generation process.

--


7ee__Create Window Legend by Room :

  1. In newly created view sheet, press the "Run" button to generate window legends for each room plan.

--


7f__Create Area Plan by Room :

  1. Choose the desired area type from the dropdown list.
  2. Enter the parameter name (boolean type) for filtering the rooms.
  3. Select the base levels for the new area plan.
  4. Press the "Run" button to create a new area plan and new areas based on the filtered rooms.

--


Optional, Check "draw outline" option to generate the outer boundary.


--


Alternatively, create an area plan by specific room names.


--